設計師:魏?。ê游髌炫灥?主任設計師)
案例說明
想住在被山林包圍的小木屋中,哪怕只是看到一角郁郁蔥蔥的松樹,也想可以和它的對話。想奔跑在森林的廣闊天地之中,感受到每一寸土壤更帶來的厚重的芳香,體會到每一片樹葉的呼吸。想象頑石一般安靜永恒的接受四季輪回,斗轉星移的變遷。
這是客戶第一次溝通想要的生活,由于客戶是周六周日陪女兒偶然過來居住使用,所以房子更加注重的是舒適性和功能性。方正的空間,使得我們不必去大面積改動原有墻體的結構,最初的就是最好的。在設計的時候,我們更加注重到房屋的使用,使得房子的使用功能更加齊全,收納空間更豐富。為了更好的享受到陽光的沐浴,我們擯棄了飄窗臺??蛻襞畠河芯毲俚男枰?,我們利用北面的陽臺重新規劃變成女兒的琴房。使得姑娘在這片屬于她的天地可以徜徉在音樂的海洋。
以人為本,在設計中考慮到在預算方面并不打算投入過多的資金,在幫客戶充分規劃每一筆資金使用的同時,幫助客戶挑選性價比更高的產品。在設計的同時也盡量避免裝修中“過量裝修”的出現。
原始結構圖↓
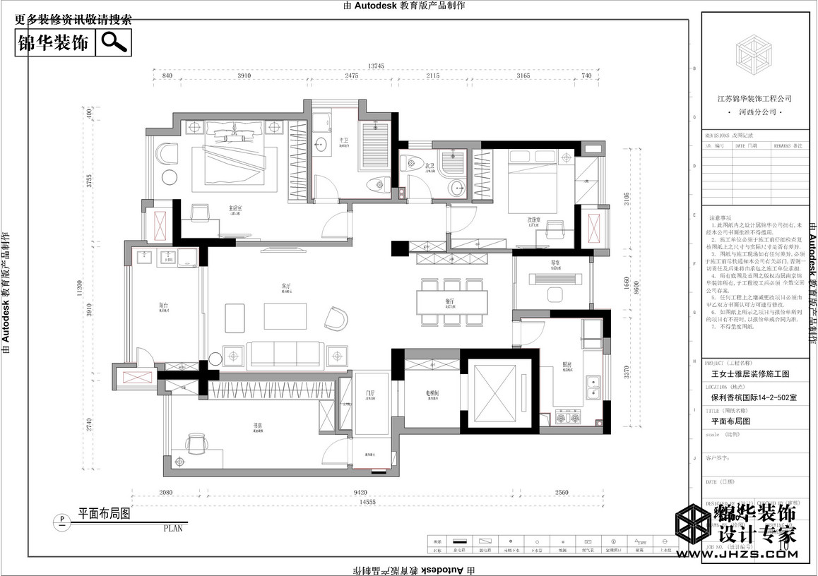
平面布置圖↓
客戶效果圖↓
客戶效果圖↓
客戶效果圖↓
客戶效果圖↓
客戶效果圖↓
客戶效果圖↓
客戶效果圖↓
客戶效果圖↓
想了解更多保利香檳國際戶型資料么?
錦華裝飾準備了保利香檳國際各戶型全套設計方案、工程量報價、參考效果圖、主材搭配方案.歡迎您和網絡客服取得聯系,預約來店面詳細溝通.錦華裝飾,設計專家!.
江蘇家裝示范品牌
代表地區優秀設計聲音
集28年工程管理經驗之大成
省時、省力更省心
| 走進錦華 | 設計團隊 | 作品列表 | 戶型解析 | 裝修百科 |
關注錦華公眾號
|
瀏覽手機官網 |
全國熱線 025 86550815 |
||||||||||
| 新聞列表 | 錦華文化 | 堂杰國際設計 | 1865旗艦店 | 極簡 | 中古 | 秦淮金茂府 | 常見問題 | ||||||||||
| 全國分公司 | 錦華招聘 | 河西旗艦店 | 鼓北旗艦店 | 法式 | |||||||||||||
| 錦華簡介 | 聯系我們 | 城東旗艦店 | 江寧旗艦店 | 歐式古典 | 北歐 | 中交錦方 | |||||||||||
| 資質榮譽 | 法律聲明 | 江北旗艦店 | 江浦店 | 美式田園 | 新古典 | 溧水玖宸府 | |||||||||||